Category Archives: Mosque
Fatima Ladak // Birmingham Central Mosque
Last week we were able to interview the clients and find out exactly what their vision for the mosque is in the future. We had some pretty interesting comments, but a few main points that were raised across all 4
Fatima Ladak // Birmingham Central Mosque
Last week we were able to interview the clients and find out exactly what their vision for the mosque is in the future. We had some pretty interesting comments, but a few main points that were raised across all 4
Jac Doody // Birmingham Central Mosque
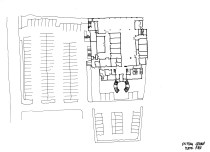
Starting on the analysis of the actual spaces within the mosques ground ‘public’ floor, the arrangement of the spaces don’t immediately lend themselves to a public space that can be used by a variety of different people, the corridors used
Jac Doody // Birmingham Central Mosque
Starting on the analysis of the actual spaces within the mosques ground ‘public’ floor, the arrangement of the spaces don’t immediately lend themselves to a public space that can be used by a variety of different people, the corridors used
Fatima Ladak // Birmingham Central Mosque
In preparation for our interviews with the client, as a group, we have formed a series of questions that engage the vision for the mosque within the next 50 years. I am aware that the clients wish to proceed with building as
Fatima Ladak // Birmingham Central Mosque
In preparation for our interviews with the client, as a group, we have formed a series of questions that engage the vision for the mosque within the next 50 years. I am aware that the clients wish to proceed with building as
Asose Salih/ Birmingham Central Mosque
On Thursday 7th November we had discussion about how the site is being used and how we can connect the design to the surroundings. We think the carriageway divides the site and we wondered if we could break this barrier
Asose Salih/ Birmingham Central Mosque
On Thursday 7th November we had discussion about how the site is being used and how we can connect the design to the surroundings. We think the carriageway divides the site and we wondered if we could break this barrier
Asose Salih/ Birmingham Central Mosque
A mosque is a place of worship for the followers of Islam which is based on the five pillars. The five pillars are, •Shahadah – Declaration of faith •Salah – Five compulsory daily prayers •Zakah – Welfare contribution •Sawm –
Asose Salih/ Birmingham Central Mosque
A mosque is a place of worship for the followers of Islam which is based on the five pillars. The five pillars are, •Shahadah – Declaration of faith •Salah – Five compulsory daily prayers •Zakah – Welfare contribution •Sawm –
Jac Doody // Birmingham Central Mosque
While looking into the surrounding urban context of the Mosque, it was interesting to see another religious building so close to it, this shot is taken from behind the mosque on the adjacent road, Conybere Street. The mosque is just
Jac Doody // Birmingham Central Mosque
While looking into the surrounding urban context of the Mosque, it was interesting to see another religious building so close to it, this shot is taken from behind the mosque on the adjacent road, Conybere Street. The mosque is just
Fatima Ladak // Birmingham Central Mosque
Although I have visited many mosques around the world (Syria, Iraq, Saudi Arabia, Malaysia etc…) I haven’t attended any other mosque on a regular basis within the UK other than that of the small purpose built mosque that I have
Fatima Ladak // Birmingham Central Mosque
Although I have visited many mosques around the world (Syria, Iraq, Saudi Arabia, Malaysia etc…) I haven’t attended any other mosque on a regular basis within the UK other than that of the small purpose built mosque that I have
Fatima Ladak // Birmingham Central Mosque
Initial research into the Birmingham Central Mosque’s history has proved to be quite unexpected. After the group known as the Muslim Association had approached the City Council to establish the Central Mosque in 1956, I was quite surprised to find
Fatima Ladak // Birmingham Central Mosque
Initial research into the Birmingham Central Mosque’s history has proved to be quite unexpected. After the group known as the Muslim Association had approached the City Council to establish the Central Mosque in 1956, I was quite surprised to find
Jac Doody // Birmingham Mosque
The Birmingham Central Mosque was open to the public in the early 1970’s, and since then it has become a landmark in the Highgate area of Birmingham. When starting to analyse the Birmingham Central Mosque, I was interested in how
Jac Doody // Birmingham Mosque
The Birmingham Central Mosque was open to the public in the early 1970’s, and since then it has become a landmark in the Highgate area of Birmingham. When starting to analyse the Birmingham Central Mosque, I was interested in how

You must be logged in to post a comment.