Category Archives: Flatpack Palais

Flatpack Palais: Project Profile

PROJECT: Flatpack Palais LOCATION: Old Deritend Library, Digbeth COLLABORATORS: Flatpack Festival, Queen and Crawford, Ensell + Hall PROJECT TYPE: design, construction, project coordination Flatpack Festival is an annual event celebrating films, cinemas and everything in between in unique venues across

Flatpack Palais: Project Profile

PROJECT: Flatpack Palais LOCATION: Old Deritend Library, Digbeth COLLABORATORS: Flatpack Festival, Queen and Crawford, Ensell + Hall PROJECT TYPE: design, construction, project coordination Flatpack Festival is an annual event celebrating films, cinemas and everything in between in unique venues across

The Palais Opens

The Flatpack Palais opens its doors after almost 7 months preparation. The venue will be packed with screenings and filmic events for the next four days. Visit the Flatpack website for details on the programme www.flatpackfestival.org.uk/

The Palais Opens

The Flatpack Palais opens its doors after almost 7 months preparation. The venue will be packed with screenings and filmic events for the next four days. Visit the Flatpack website for details on the programme www.flatpackfestival.org.uk/

Palais Pre-fab

          Almost all done with the pre-fabrication including some superb fabric covers from Ensell + Hall and students from BA (Hons) Textile Design.

Palais Pre-fab

          Almost all done with the pre-fabrication including some superb fabric covers from Ensell + Hall and students from BA (Hons) Textile Design.

Flatpack Palais – Kickstarter Campaign

                    We did it!. Well, those of you who donated. Thanks to all of you.    

Flatpack Palais – Kickstarter Campaign

                    We did it!. Well, those of you who donated. Thanks to all of you.    

The challenge of live projects – Jordanna Holton

As architecture students we are provided with projects that often deal with the initial parameters of design briefs – a list of requirements that we are expected to meet in order to achieve the project outlines. What is the budget?

The challenge of live projects – Jordanna Holton

As architecture students we are provided with projects that often deal with the initial parameters of design briefs – a list of requirements that we are expected to meet in order to achieve the project outlines. What is the budget?

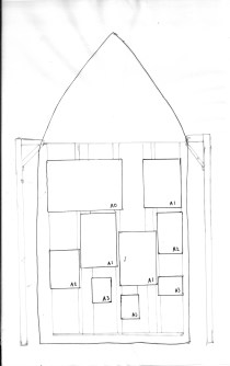
Flatpack Display arrangement – HoLim Yung

2013_02_25 drawing 01 The drawing is to finalise the display arrangement and number of supports it need. It act as a talking point for the supports to evolve from. This is a combination of sketches and discussion in the display

Flatpack Display arrangement – HoLim Yung

2013_02_25 drawing 01 The drawing is to finalise the display arrangement and number of supports it need. It act as a talking point for the supports to evolve from. This is a combination of sketches and discussion in the display

Flatpack Palais – Assemble Workshop – Dan Bagnall

Assemble is a collective of architects, artists and designers, many of whom studied at the Cambridge School of Architecture together. They have completed a number of temporary projects, including The Cineroleum, a pop-up cinema based in a disused petrol station,

Flatpack Palais – Assemble Workshop – Dan Bagnall

Assemble is a collective of architects, artists and designers, many of whom studied at the Cambridge School of Architecture together. They have completed a number of temporary projects, including The Cineroleum, a pop-up cinema based in a disused petrol station,

Exhibition stand idea

A simple design for hanging the posters from a free-standing structure. Supports are to be hidden behind the columns. Fishing wire is used to connect the images so will give the impression they are floating. The arrangement of the posters

Exhibition stand idea

A simple design for hanging the posters from a free-standing structure. Supports are to be hidden behind the columns. Fishing wire is used to connect the images so will give the impression they are floating. The arrangement of the posters

Palais Prototypes

                      Early prototypes of particular details for the structure have moved the design onwards.  It is moving away from the original concept of a green hill, but with such a

Palais Prototypes

                      Early prototypes of particular details for the structure have moved the design onwards.  It is moving away from the original concept of a green hill, but with such a

Display idea- HoLim Yung

Display sketch design to show the flatpack group. The free standing posts arranging randomly in a space allocated. Posters are suspended between trees and constructed in such a way for a route within the posts.

Display idea- HoLim Yung

Display sketch design to show the flatpack group. The free standing posts arranging randomly in a space allocated. Posters are suspended between trees and constructed in such a way for a route within the posts.

Palais Kickstarter

Help the Flatpack Co.Lab fundraise for their project. Follow the kickstarter website to donate something to be part of the festival. Donations start from £1. http://www.kickstarter.com/projects/640215839/flatpack-palais http://www.flatpackfestival.org.uk/2012/12/help-support-our-kickstarter-campaign/

Palais Kickstarter

Help the Flatpack Co.Lab fundraise for their project. Follow the kickstarter website to donate something to be part of the festival. Donations start from £1. http://www.kickstarter.com/projects/640215839/flatpack-palais http://www.flatpackfestival.org.uk/2012/12/help-support-our-kickstarter-campaign/