Jac Doody // Birmingham Central Mosque

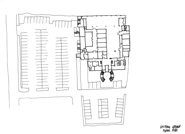
mosque4Starting on the analysis of the actual spaces within the mosques ground ‘public’ floor, the arrangement of the spaces don’t immediately lend themselves to a public space that can be used by a variety of different people, the corridors used to move between rooms are small and not enough light gets into these areas. also there are rooms that require you to access from an exterior door, which could be useful in some ways by not being crowded into these corridors but does show it can be difficult to get to the desired place. Although the women’s entrance is clearly signposted, i think more could be done to highlight this as well as the mens entrance away from the staircase leading to the first floor. A lot of the new proposals centre on the car park that the mosque wants, but while conducting interviews it is clear that they also want more forms of flexible interior space within the fabric of the building. At the moment the conference room is disjointed and wraps around the classrooms, this effectively cuts this useful room in two and can’t be used as a whole, new proposals look at opening this up completely, I think when writing the new brief it would be crucial to keep this ideal within the design so people can use the floor as a multi-purpose room.

Leave a comment