Category Archives: Free City Guide
Free city- Poetry
Dave Baldock, Mariam Mann, Stefan Fratila, Liam Witham, Afiyha Saleem, Becky Horton
Free city- Poetry
Dave Baldock, Mariam Mann, Stefan Fratila, Liam Witham, Afiyha Saleem, Becky Horton
Boundaries
We started to define the spaces into different boundaries, the canal has different forces dictating the views from the canal into the city. We separated these into three categories, the views effected by nature, exposed views of the city and
Boundaries
We started to define the spaces into different boundaries, the canal has different forces dictating the views from the canal into the city. We separated these into three categories, the views effected by nature, exposed views of the city and
Tensions
The following sketch depicts the tension between the curated landscape against the industrial capitalist and the organic nature landscape claiming the canal. Dave Baldock, Mariam Mann, Stefan Fratila, Liam Witham, Afiyha Saleem, Becky Horton
Tensions
The following sketch depicts the tension between the curated landscape against the industrial capitalist and the organic nature landscape claiming the canal. Dave Baldock, Mariam Mann, Stefan Fratila, Liam Witham, Afiyha Saleem, Becky Horton
Layers of the city
The map shows the layers of the city against the canal, the layers in this image is split into 3 sections. Dave Baldock, Mariam Mann, Stefan Fratila, Liam Witham, Afiyha Saleem, Becky Horton
Layers of the city
The map shows the layers of the city against the canal, the layers in this image is split into 3 sections. Dave Baldock, Mariam Mann, Stefan Fratila, Liam Witham, Afiyha Saleem, Becky Horton
Location map
The image below shows the location of the canal we explored. Dave Baldock, Mariam Mann, Stefan Fratila, Liam Witham, Afiyha Saleem, Becky Horton
Location map
The image below shows the location of the canal we explored. Dave Baldock, Mariam Mann, Stefan Fratila, Liam Witham, Afiyha Saleem, Becky Horton
Canal walks
We walked through the canal taking in all the senses; touch, smell, and sounds walking into areas where people had left traces behind. We viewed the city from the canals perspective and recorded the traces left behind of those who
Canal walks
We walked through the canal taking in all the senses; touch, smell, and sounds walking into areas where people had left traces behind. We viewed the city from the canals perspective and recorded the traces left behind of those who
Poetry Readings
Today we had an interesting session with linguist Robert Lawson who read some Scottish poems that began an enlightening discussion about the issues of various dialects within the UK and abroad. Later, we had the pleasure to hear Liz Berry read
Poetry Readings
Today we had an interesting session with linguist Robert Lawson who read some Scottish poems that began an enlightening discussion about the issues of various dialects within the UK and abroad. Later, we had the pleasure to hear Liz Berry read
Storyboard creation
We spent the session understanding the importance of the storyboard in film creation and editing. We looked at types of film such as the ‘cinematic GIF’ and methods of portraying our group themes in a visual manner such as the Split
Storyboard creation
We spent the session understanding the importance of the storyboard in film creation and editing. We looked at types of film such as the ‘cinematic GIF’ and methods of portraying our group themes in a visual manner such as the Split
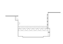
Free City-Poetry & Architecture
Differents methods have been used to explore the canal, photos, videos, sketches and now sections. The sections permit to clearly see the space around, the space is not distorted by any perspectives and help us to be more precise about
Free City-Poetry & Architecture
Differents methods have been used to explore the canal, photos, videos, sketches and now sections. The sections permit to clearly see the space around, the space is not distorted by any perspectives and help us to be more precise about
The Last Tutorial
The edgelands are the spaces between the definitions and these are the places where the myths and urban legends manifest, and so to map this we wrote a poetic myth of a journey through these spaces. And used the nodes
The Last Tutorial
The edgelands are the spaces between the definitions and these are the places where the myths and urban legends manifest, and so to map this we wrote a poetic myth of a journey through these spaces. And used the nodes
Film Workshop
Guided by our explorations into the canal as a place of duality and conflict, we undertook a film workshop with Pip Piper. Looking at the canal through the eyes of filmography further challenged the way we can read and understand
Film Workshop
Guided by our explorations into the canal as a place of duality and conflict, we undertook a film workshop with Pip Piper. Looking at the canal through the eyes of filmography further challenged the way we can read and understand
Memories
Imprinted spaces we experienced on our canal walks as documented in sketches and cognitive maps. Through the experience of sounds, sights and memory. BC
Memories
Imprinted spaces we experienced on our canal walks as documented in sketches and cognitive maps. Through the experience of sounds, sights and memory. BC


You must be logged in to post a comment.