
COLLABORATOR: Joseph Joseph
STUDENT GROUPS: BA (Hons) Architecture, BA (Hons) Interior Architecture, MArch Architecture
PROJECT TYPE: design feasibility, work space
‘Imagine a workplace that monitors your blood sugar levels and heart rate for signs of hunger and exhaustion, a space that oxygenates and perfectly chills the air around your desk to counteract any chance of an afternoon slump. This will be your workplace in 2025, an intuitive, human-orientated environment driven by smart AI systems that optimise workers’ performance to sharpen their focus and meet their demands, leaving them feeling healthier, cared for and more energetic at the end of the working day than at the start.’
– Future Laboratory, Trend forecaster London 2018
Your generation, Generation Z, are entering the workplace with a different attitude and expectation towards the workplace than your Millennial forbearers. As digital natives, Gen Z has come of age during the rise of technology and the coworking model of shared /communal workspaces. In order to meet the requirements of the age of tomorrow, working environments must harness new technology and encourage collaborationallowing successful businesses and employee happiness.


Future Workplace for 2019 has design agency Joseph Joseph as our live client – providing students with their headquarters in London to create a design response. Proposals investigated how cultural, social and technological arenas are influencing our modern lives within the context of work space environments. Other areas of exploration include: how we utilise furniture, technology and engage within shared working environments will be a key consideration for this project.
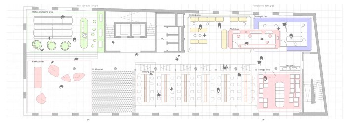
The final concept drew inspiration from Joseph Joseph’s catalogue of homeware items and playfull upscaling to turn them into functional furniture laid across an office landscape. Concepts were presented to the client with 1:20 scale furniture models, 1:50 scale space plan, section, isometric and 3D visualisations of the proposed environment.




You must be logged in to post a comment.