\\

  • About Co.Lab
  • Further Information
    • Collaboration Methods
    • Which Collaboration Method?
    • Project Attributes
    • Information for Collaborators
    • Information for Students
  • The Co.Lab Network
    • Key Staff
    • Previous Collaborators
    • Links
  • The Collaborative Blog
  • The Student Blog
  • Research
  • News and Events
  • Contact
  • SELECTED WORKS…
    • 47 Times Together
    • Aluminium Tectonics
    • Antigona
    • Bhm Mid Mod Soc Map
    • BOM
    • The Brick Project
    • Centrala
    • Flatpack Palais
    • Futuremakers
    • Hayes Bridge
    • Hidden Spaces
    • Knowledge Hub: Urban Strategy Document
    • Mosque
    • STEAMhouse
    • Synaesthetic Dining
    • Tamed With A Smile, Dudley Zoo
  • co.LAB electives 20/21
  • __PROJECT PORTFOLIO:
  • Projects by Year
    • 2018-19
      • Adventures in Hybrid Realities
        • The Brick Project
      • Conc(re)te.RIP
      • C.U.C.E
      • Future Workplace
      • HBVC Wellbeing Community Garden
      • Real Homes | Real People
      • Studio Teaching @ St. Edmund’s
      • Synaesthetic Dining
      • Wellbeing Community Gardens: HBVC
      • Zolid Surface
    • 2017-18
      • 100 Stories
      • Antigona
      • Bhm Mod Soc Map
      • Edit/Or
      • Grade Separation
      • Innovative Urban Lighting
      • Keeley Travel
      • Knowledge Exchange
      • Part-Time Pedagogies
      • Knowledge Exchange
      • Unfinished Article
    • 2016-17
      • 100 Stories
      • Destination Wayfinding
      • Expanded City
      • Free City Guide
      • Knowledge Exchange
      • Latrine Dream
      • Modern Gazetteer
      • Production Show: Make Do Type
      • Transit Spaces
      • Zero Carbon Design & Retrofit
    • 2015-16
      • Aluminium Tectonics
      • Italian Quarter, Curzon
      • Digital Fashion
      • Studio Teaching: St. Edmund’s
      • Minerva Works: Creative Economy
      • Modern Gazetteer
      • Pocket Park
      • Wyre Forest Timber Exploration
      • Zero Carbon Design & Retrofit
    • 2014-15
      • Aluminium Tectonics
      • Malvern Outdoor
      • Modern Gazetteer
      • Stirchley High Street
      • Studio Teaching @ St. Edmund’s
      • Trends Pavilion
      • Wyre Forest Timber Exploration
    • 2013-14
      • All of Birmingham is a Stage
      • Aluminium Tectonics
      • BAAD Space
      • Hidden Spaces
      • Khcse
      • Significant Features, Bournville
      • Central Mosque
    • 2012-13
      • Tamed With A Smile, DZG
      • Flatpack Palais
      • Highbury Park
      • LA:B Mobile
      • Stonehouse Gang Clubhouse
      • The Public: The Ramp
    • 2011-12
      • Bürolandschaft
      • Guerilla Ecology
      • Hayes Cave Trail
      • LA:B
      • The Public: Art of Architecture
    • 2010-11
      • BAA Showcase, Trove
      • Burford Road
      • Hayes Bridge
      • Modern Gazetteer: St Chads
  • Built Structures
    • BAAD Space
    • Tamed With A Smile, Dudley
    • Flatpack Palais
    • Guerilla Ecology
    • Hidden Spaces
    • Hayes Bridge
    • Hayes Cave Trail
    • LA:B Mobile
    • Trends Pavilion
  • Design/Feasibility
    • Burford Road
    • Central Mosque
    • Chaddesley School Pavilion
    • Future Workplace
    • HBVC Wellbeing Community Garden
    • Highbury Park
    • Italian Quarter, Curzon
    • KHCSE
    • Malvern Outdoor Dining Hall
    • Pocket Park
    • Stonehouse Gang Clubhouse
    • The Public: The Ramp
  • Exhibitions/Events
    • 100 Stories
    • Antigona
    • BAA Showcase, Trove
    • RIBA BSoA Showcase,
    • Collaborative Conc(re)te.RIP
    • Downtown Is For People
    • Futuremakers
    • Hidden Spaces
    • LA:B Mobile Unit
    • Synaesthetic Dining
    • Tamed With A Smile, Dudley
    • The Public: Art of Architecture
  • Product + Prototyping
    • Aluminium Tectonics
    • The Brick Project
    • Digital Fashion
    • Innovative Urban Lighting
    • STREET SMART CITY
    • Zolid Surface
  • Research + Development
    • Adventures in Hybrid Realities
    • Birmingham Production Space
    • Bhm Mid Mod Soc Map
    • Bürolandschaft
    • C.U.C.E
    • Destination Wayfinding
    • Edit/Or
    • Latrine Dream
    • Minerva Works: Creative Economy
    • Transit Spaces
    • Zero Carbon Design & Retrofit
  • Spaces for the City
    • Birmingham Open Media
    • Birmingham Open Media 2.0
    • Dual Works Store
    • Centrala Gallery
    • STEAMhouse
  • Teaching + Pedagogy
    • Critical Part-Time Pedagogies
    • Demystifying Studio Culture
    • Knowledge Exchange
    • Social Mobility in Architecture
    • Studio Teaching @ St. Edmund’s
  • Transdisciplinary Exploration
    • Collaborative Conc(re)te.RIP
    • Downtown is for People
    • Free City Guide
    • Grade Separation
    • Keeley Travel
    • Production Show: Make Do Type
    • Shored, my ruin(ed) city
    • Synaesthetic Dining
    • Unfinished Article
  • Communal Urbanism
    • Knowledge Hub: Urban Strategy
    • Minerva Works: Creative Economy
    • Stirchley High Street

BHM CO\\ABORATIVE LAB:ORATORY

is an award-winning interdisciplinary design and research initiative within the Birmingham School of Architecture & Design. We create and co-produce projects that engage with the dynamic context of our city and explore the extremities of artistic disciplinary boundaries – all through an ongoing process of collaborative practice

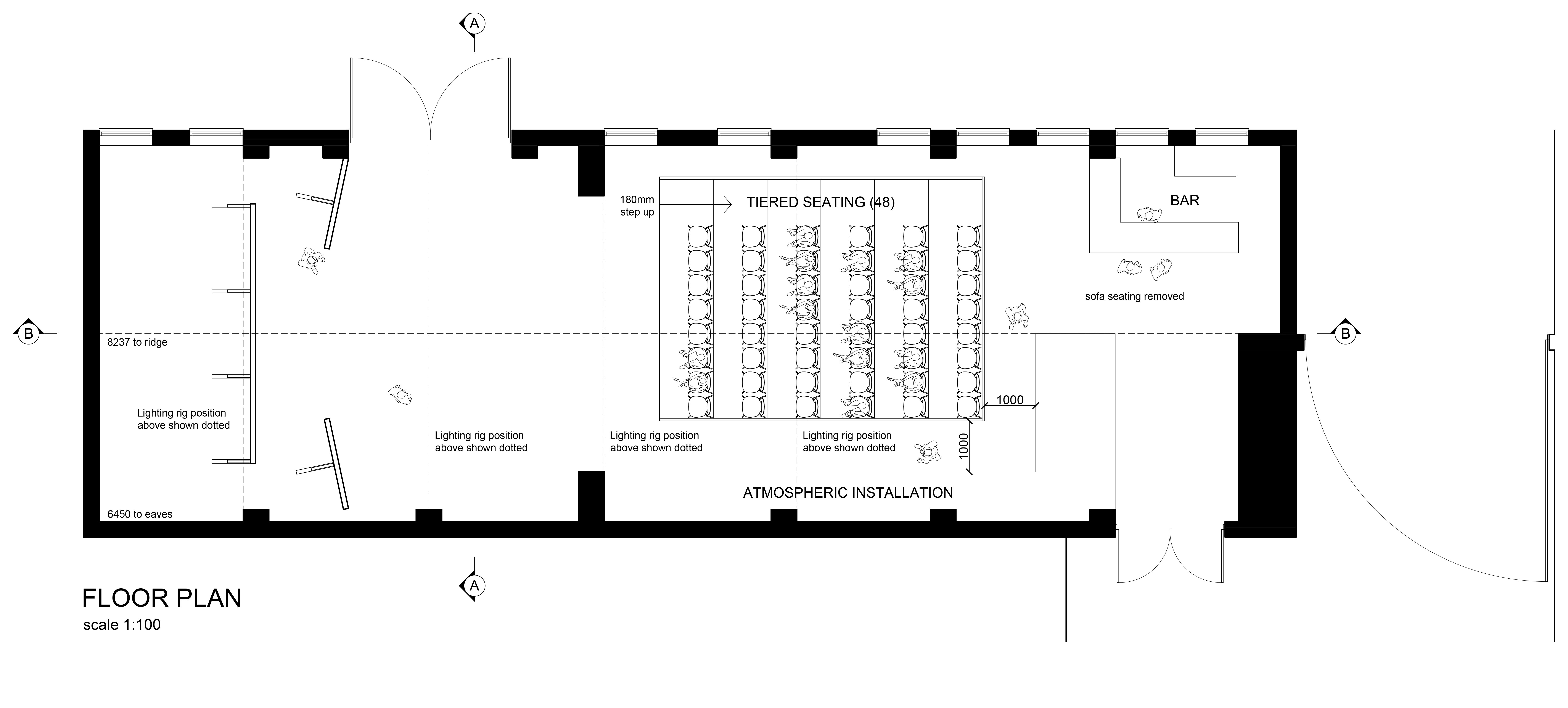
← Antigone – Group 2 – Proposal

Floor Plan

« Previous Image
/
Next Image »
By Co:LAB Student / 14/03/2018 7247 × 3272 pixels

Website Powered by WordPress.com.

This website collates original and borrowed content from referenced sources. Please contact Co.Lab if a reference is missing or incorrect. Original images and words © 2020 Birmingham City University with student’s consent unless otherwise stated.

For more information contact:
alessandro.columbano@bcu.ac.uk

  • Subscribe Subscribed
    • \\
    • Join 43 other subscribers
    • Already have a WordPress.com account? Log in now.
    • \\
    • Subscribe Subscribed
    • Sign up
    • Log in
    • Copy shortlink
    • Report this content
    • View post in Reader
    • Manage subscriptions
    • Collapse this bar