Brief
From the brief given to us it was apparent that the the client wanted a collaborative yet healthy environment that smaller businesses could work in. The client wants to incorporate local produce too.
From the client brief, we as a group wrote our own brief that we would like to work towards. (Everyone)
Our Brief
The aim for this project is to address the issue of wellbeing, by improve workers mental health through the ideas of good acoustics, regular exercise and user collaboration. Having variety and choice of working environments, and making multi-purpose areas to generate the most effective use of space. (Everyone)
Research
Workspace

Workspace is supposed to look and feel comfortable and creating a flow. This includes providing privacy as a luxury, this means being given the option to be private if they want to but if they don’t they don’t have to and creating that balance. The idea of a future workshop to me means increasing collaboration and interaction to increase creativity too.
(Aysha Essat)
Well-being and Mental health
We decided to look at well being as a subject to focus on as having good well being in a work place makes the workers feel better towards daily tasks.
Not having a good working environment impacts on a persons mental health, leading to isolation, uneasiness, anxiety and overthinking, this then leads to office workers working from home, no communication which impacts a person even more.
If mental health is triggered from the workplace that it impacts home life and vice versa. mental health issues can cause the individual to stop doing daily tasks. For example going out to the shops or going for a walk.
(Aysha Essat, Candice Nevins)
The direction of our project
When beginning this project as a group we decided we needed to understand and research into who the users were going to be and how people worked best within co working spaces.
Acoustics is a a very common problem within co working spaces as some people believe it is too quiet within the space to work and others too loud and so we decided this would be our main focus along side wellbeing. We have decided to focus on well being within our project because we feel that it is important each individual feels comfortable and able to work in a positive environment.
We have came up with some design approaches which will improve acoustics especially within this empty barn for example we will make the best use out of natural surrounding materials in the location within our furniture designs, and develop design layouts that will enhance collaboration as well as being able to work as an individual with separating walls etc. This will improve the flexibility of the space encouraging users to work how they feel comfortable.
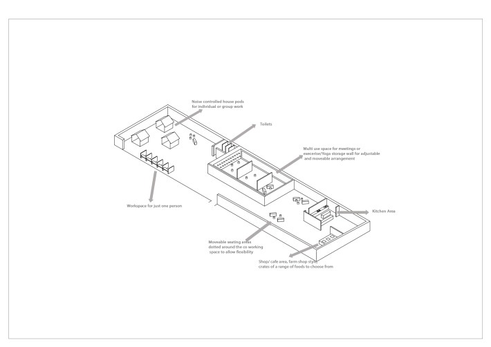
As a group we decided it would be best to design a separate box space within the co working area which will be flexible to use as a meeting or exercise room. To do this we have included a storage wall whereby chairs, yoga mats etc can be kept away in the wall and taken out whenever. This separate space will be surrounded with more individual spaces for people to work and a shop/ cafe area. This will be designed similar to a farm shop to really relax the space and include surrounding businesses within this one.
Cafe and seating design ideas/sketches:


(Candice Nevins)
Workout spaces in the workplace

After researching into workout spaces and finding that working out before or after work increases productivity, enhances morale and reduces absenteeism in the workplace we decided to incorporate an area which could be both a yoga and meeting room for group discussions. We thought this would give the co-working space a positive image and encourage people to attend.
Amernic: “Thirty minutes to an hour of exercise during a busy day at work really helps the clarity of the mind”. Research also shows that there is a high correlation between fitness and physiological health therefore increasing wellbeing in the workplace.
(Sadie Branson)


Acoustics

Acoustics are important in the workspace as if it was too loud then workers that want to focus will get distracted and if it is too quiet then it makes things uneasy to even get a pen. Sound is one of the main reasons why office workers like to work from home. Knowing the location is a large empty barn, the sound quality is quite echoey so that will make things worse. (Aysha Essat)



Site Visit
The site visit helped us all to get some inspiration for design ideas but also helps us with our material influences. (Aysha Essat)
Initial Ideas
These are some initial sketches with the idea of a stool, from this it has made me think of turning them around to to be a 2 people bench that increases interaction. (Aysha Essat)
Sketch models
(Models made by Aysha Essat)
Having that choice and versatility to do what you deem as comfortable at the time. (Aysha Essat)
SPACE PLANNING



ACOUSTIC FURNITURE ANALYSIS

ACOUSTIC FURNITURE INITIAL SKETCHES


Furniture model
CAD
This is a Solidworks rendering of a stool that is also in the wall storage.
(Aysha Essat, Alexander Ward)
Physical
This is a third scale model of one of the designs we came up with. (Alexander Ward, Aysha Essat)
Final floor plan (Sadie Branson)

Meeting room variations- floor plans (Sadie Branson)

By having movable whiteboards it allows for separation of the space giving more than 1 meeting room.
House pod Visual (Sadie Branson)
The interior of the house pods with whiteboards allows for group collaboration and brain storming.

multi use room design :

Final Design Decisions
Yoga/exercise layout ideas:


Sliding door design for multi use room within the co working space:

When designing this separate space we had to ensure it still felt a part of the site and so we included glass doors to the entrance which can be left open or closed to create the desired space. This will also allow the most amount of light in which is best for good working conditions.
3D Design Visuals:

Rendered Version:

A3 Poster for final presentation:

(Candice Nevins)
Final Interior Model



(Candice Nevins and Sadie Branson)
Furniture Presentation Board

(Aysha Essat)

(Aysha Essat)

(Alexander Ward)

(Alexander Ward)










You must be logged in to post a comment.